前回は「図面のどこから描き始めたらいいか」を
お伝えさせていただきました。
URL:https://cadrise.kikai-cover.jp/manual/zumen1/
その答えは、図面を読み解き、
【基準面】と【原点】を見つけることです。
形状により分かりやすい投影図で描かれるので
図面によって展開も変わります。
いろんな図面を見て慣れてくださいね。
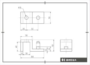
さて、そんな前回の図面、
原点の位置を左下、奥行き中間の位置が【原点】
とご紹介しました。
「あれ?違うんじゃない??」
と思われた方、いますか?
気づいた方はとっても鋭いです。
実はもう1つ、この図面では
原点になりえるポイントがあります。
↑ぜひ探してみて下さい。
では、答えです。
左下、奥行き中間の位置以外に、
左下、手前の角です。
この図面の場合、
どちらを原点としても正解となります。
手前を原点とした場合、
中心についている穴を決めるために
中心線を引く必要があります。
その場合、寸法入力ではなく
「中点」の拘束を使ってくださいね。
*****
さて、今回書きたかったのは
もう一つの原点の見方、ではありません。
このように
人によって図面の読み取り方が変わってしまう可能性がある
ということをお伝えしたいのです。
どちらを原点にしても間違いではないのですが、
例えば同じ設計グループ内に両方のタイプの方がいると
設計変更などが発生した場合に編集方法が異なるなど
トラブルの原因にもなります。
このトラブルを防ぐには、「社内ルール」という
SOLIDWORKS以外での外部ルールで統一させます。
御社ではこのような場合、
「どちらを【原点】とするか」
社内ルールを先輩や上司に聞いてみてくださいね。
さて、このようにして図面通りに
モデリングしていくのですが、
なぜそこまで図面通りにする必要があるのか?
それは、「図面化したときに寸法がそのまま入る」
というメリットがあるからです。
今月はあと一回、図面についてお伝えします。


