今回は【エンティティオフセット】についてご説明します。
【エンティティオフセット】とは既にある線をある一定の間隔(オフセット)で
スケッチできる機能(コマンド)のことです。
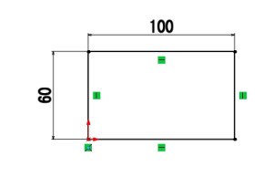
↑上のように図をかいてみましょう。
↑CommandManagerから「エンティティオフセット」をクリックします。
↑基となる線(ここではこの矩形です)を選択すると水色にハイライトします。
↑パラメータの線を「15.00mm」に設定してみます。
「寸法の追加」と「チェーン選択」にチェックが入っていることを確認します。
↑15mm外側にオフセットした線が追加されました。
↑同じように次は角丸の矩形を作ってみましょう。
寸法を「70」と「150」、「R20」と設定してみます。
↑エンティティオフセットをクリックし、基となる線を選択します。
今回は10.00mmを「反対方向」にもチェックを入れてみます。
すると先ほどとは逆に内側に線が追加されます。
↑「ボス押し出し」をします。
↑「エンティティオフセット」コマンドを活用する機会は多いと思うので
しっかり覚えておきましょう。








